







Description
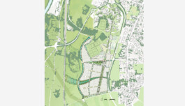
Située à proximité des grands axes routiers, de l’Université, de deux agglomérations,et de la vallée de l’Escaut, la technople du Mont-Houy représente un enjeu majeur de développement économique et d’extension du territoire. L’aménagement proposé dans le schéma directeur, est structuré par trois espaces publics majeurs et des voies de circulation et de desserte hiérarchisées offrant un cadre de qualité à l’implantation des entreprises de technologie de pointe. Ces aménagements ont pour objectifs:
- d’affirmer la centralité de la technopole en créant une grande place-jardin en entrée de zone, lieu de synergie entre activités et enseignement
- de structurer le tissu urbain autour de l’axe de prolongement du tramway
- de créer une grande coulée verte permettant la rétention des eaux pluviales et offrant un large espace de promenade.
Maîtrise d’ouvrage
Communauté d’agglomération de Valenciennes Métropole
Maîtrise d’oeuvre
HYL, Paysagistes, urbanistes - Mandataire
GEOGRAM, Urbanisme réglementaire
EGIS, BET VRD et environnement
ESPACETUDE, Ingénieur agronome
COSIL, Éclairagiste
Type de mission
Tranche ferme : Mission témoin de Moe Réalisation du parti d’ensemble
AVP global
Mission d’urbanisme et d’architecte coordinateur de l’opération
PRO-AOR
Superficie
80 Ha
Coût
8 317 662 € H.T.